PROJEKTE
gebäude
infrastruktur
stadtplanung
wettbewerbe
Büro
bürostruktur
team
News
Kontakt
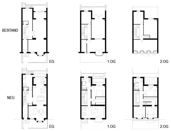
Haus M. - Düsseldorf Oberkassel